MESSINA. Un porticciolo turistico, strutture ricettive all’avanguardia, abitazioni “green”, parcheggi, hotel, ampi spazi verdi, orti, piscine con vista sul Tirreno e architetture di design. Ma anche polemiche, volumetrie che vanno e vengono, valutazioni d’incidenza e impatto ambientale impantanate negli uffici della Regione. E un progetto che, forse, sarà consegnato a breve al comune di Messina.
È il progeggo di riqualificazione del tratto di waterfront compreso fra Mortelle e Tono: km e km di costa dall’altissimo potenziale paesaggistico e turistico che ad oggi languono in una sorta di eterno limbo. Da un lato il passato glorioso degli anni ’50, quando gli storici lidi testimoniavano la volontà di investire nel turismo balneare con la creazione di “una città per la spiaggia” citata dai giornali e dalle riviste di mezza Europa; dall’altro il triste presente, caratterizzato da strutture fatiscenti, spiagge inaccessibili e ampi tratti di arenile di esclusiva pertinenza dei privati.
E il futuro? Potrebbe essere legato a un “vecchio” progetto che aveva fatto parecchio discutere in città a marzo del 2008, quando a Palazzo Zanca venne presentato il piano particolareggiato della Tono-Mortelle realizzato dalla società “Mbm Arquitectes” di Oriol Bohigas, celebre architetto spagnolo che avrebbe dovuto ridisegnare l’affaccio a mare sul Tirreno, un vecchio “pallino” dell’ex city manager e assessore ai Lavori pubblici della Giunta Buzzanca Gianfranco Scoglio, e che era parte integrante del Piano strategico “Messina 2020, il piano integrato d’ambito urbano che dieci anno fa ambiva a riprogettare e riqualificare quella Messina che oggi, 2020, alla scadenza immaginata, è esattamente uguale e prima, se non peggio, e parla ancora degli stessi argomenti.
Il restyling originale del waterfront prevedeva un intervento su 5 km di costa e complessivi 170 ettari, con una statale 113 sdoppiata, una lunga promenade, degli orti pubblici, un parco delle dune, un’area residenziale e ben sei “lidi” dalle diverse anime, fra i quali uno destinato ad ospitare attività didattiche e residenze attrezzate per gli studenti, sulle orme dei campus americani. Il tutto, almeno sulla carta, con grande attenzione alla sostenibilità ambientale e al recupero della tradizione locale.
Rimasto per decenni in un cassetto, fra le scartoffie della burocrazia e le lungaggini della politica, il progetto oggi portato avanti dall’architetto catalano Oriol Capdevila è adesso pronto a risorgere come l’araba fenice, aggiornato ai tempi moderni.
I rendering:

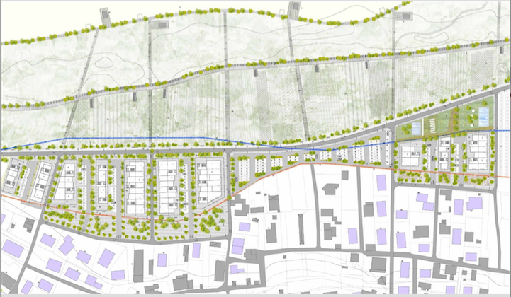
La planimetria:








Il progetto appare bello. Non tiene conto però che ormai a Messina dominano i baitti.
Tempo poco e si può immaginare come ridurrebbero il tutto.
Purtroppo.
Esatto, i lunghi viali, le architetture eclettiche e i fini dettagli urbani sarebbero bersagli costantemente vandalizzati che renderebbero la zona una perfetta area degradata dove corse clandestine di cavalli e motorini truccati la farebbero da padrone ogni chiaro di luna. E’ un progetto chiaramente fuori dai nostri usuali parametri e standard cittadini
[…] naftalina ormai da tanti anni, il progetto potrebbe adesso tornare in auge, mentre ancora si attende che venga portata a termine la riqualificazione delle storiche strutture […]